El CELCIT tiene su sede social en el Centro Cultural Mariano Moreno de la Fundación para la Educación, la Ciencia y la Cultura (FECIC), ubicado en la calle Moreno 431 de la ciudad de Buenos Aires, a metros de la histórica Plaza de Mayo.
Se accede por un amplio hall de entrada, donde está ubicada la boletería de la sala de espectáculos, el área de atención al público y los baños para ambos sexos.
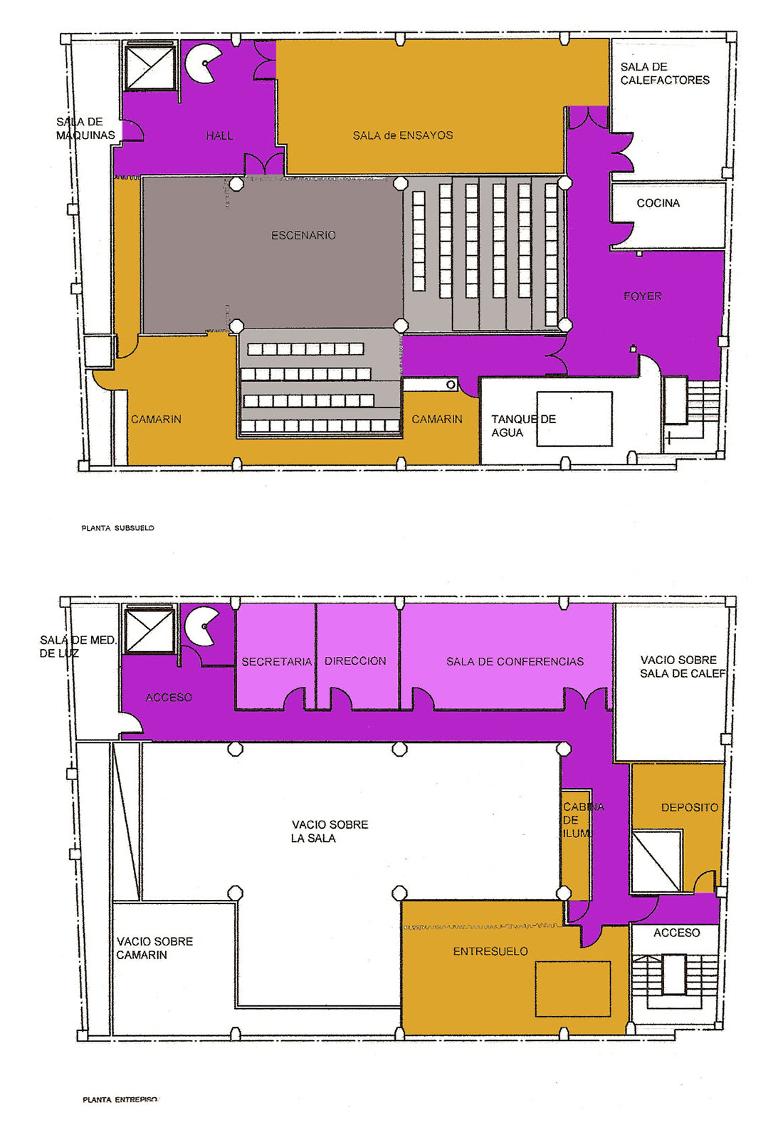
Descendiendo al subsuelo, nos encontramos con un hall de distribución (a su vez galería de exposiciones) que lleva hacia la sala de espectáculos que lleva el nombre "Juan Carlos Gené" y sus dependencias, y hacia la sala de usos múltiples y la cocina.
En un nivel intermedio, balconeando sobre la sala de espectáculos, encontramos oficinas, la cabina de luces y sonido, el depósito de escenografía, utilería y vestuario.
Concebida como un ámbito polivalente, en su disposición más habitual de uso tiene un espacio escénico de 6 x 6 metros, con dos plateas en L (o tres, en U), y una capacidad máxima de 112 espectadores. El equipamiento de luces y sonido es óptimo para una sala de esas características. La altura de piso a parrilla de luces y escenografía es de 4,5 metros.
Cuenta con dos amplios camarines, sistema de ventilación y calefacción, ingreso para discapacitados y montacarga para el traslado de escenografías.
Es un espacio de 60 metros cuadrados con piso de madera plastificado, apropiado para ensayos, cursos, mesas redondas, presentaciones de publicaciones, etc. Cuenta con TV y reproductor de DVD y VHS.





con Lola Proaño (Argentina)
3 de julio al 21 de agosto
Jueves de 11 a 13
con Carlos Ianni (Argentina)
8 de abril al 25 de noviembre
Martes de 10 a 13
con Teresita Galimany (Argentina)
Abril a noviembre de 2024
Lunes de 19 a 21
con Ignacio Apolo (Argentina)
1º de agosto al 30 de noviembre
Sin horarios fijos
con Hernán Gené (España)
3 al 26 de noviembre
Lunes y miércoles de 11 a 13
con Teresita Galimany (Argentina)
6 de agosto al 19 de noviembre
Miércoles de 19 a 21
con Horacio Banega (Argentina)
Julio y agosto
A definir próximamente